Firma
SISTEMA Riemerling GmbH & Co. KG
Kirchplatz 7b, 82041 Oberhaching b. München
Kontakt
MAIL info@stoeckicht.de
TEL +49 (0) 89 79 70 77
Wir freuen uns, den Start eines neuen Wohnbauprojekts in der malerischen und zugleich zentralen Lage von Hohenbrunn-Riemerling bekannt zu geben.
Die Fertigstellung ist voraussichtlich für den Winter 2026 bis Frühjahr 2027 geplant.
Ab sofort gehen die entstehenden Eigentumswohnungen in den Verkauf. Alle Interessenten sind herzlich eingeladen, sich direkt an uns zu wenden. Für alle Fragen rund um das Projekt stehen wir Ihnen gerne zur Verfügung und freuen uns auf Ihre Anfragen.
Dreiklang Riemerling: Drei Häuser. Eine Vision. Ihr Zuhause.
Mit „DreiKlang Riemerling“ entsteht südöstlich von München ein modernes Wohnensemble, das Architektur und Lebensqualität in Einklang bringt. Drei elegante Mehrfamilienhäuser formen ein harmonisches Ganzes – klar in der Formensprache, nachhaltig in der Bauweise und zeitlos im Stil.
In ruhiger und zugleich zentraler Lage, eingebettet in ein reines Wohngebiet, an der Jagdstraße in 85521 Hohenbrunn-Riemerling, befindet sich unser wegweisendes Neubauprojekt: drei moderne Mehrfamilienhäuser, jedes Haus beherbergt lediglich 8 exklusive Eigentumswohnungen – so genießen Sie die Vorzüge einer kleinen, persönlichen Gemeinschaft mit Wohlfühlatmosphäre.
Die lichtdurchfluteten Wohnungen sind optimal nach Süden ausgerichtet, überzeugen durch zeitgemäße Architektur und den Einsatz neuester, energieeffizienter Bautechnologien. Hochwertige Ausstattung und durchdachte Grundrisse schaffen ein Zuhause mit höchstem Komfort. Alle Etagen sind zudem mit einem Personenaufzug erreichbar, für flexible und
bequeme Wege.
Nachhaltigkeit und Wohnkomfort stehen in der Planung im Mittelpunkt, um ein langlebiges und wertbeständiges Wohnumfeld zu schaffen, das sich an den Bedürfnissen der zukünftigen Eigentümer und Bewohner orientiert.




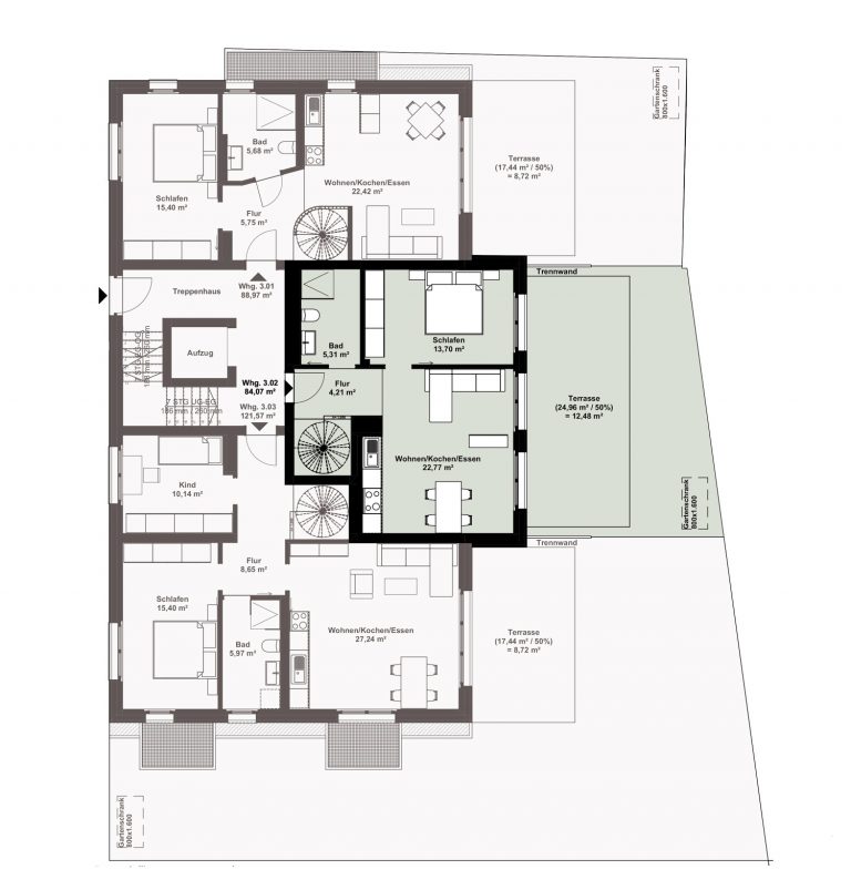
Grundrissbeispiele



Bauweise und Details
Wir verbinden zeitlose Architektur mit innovativer Bauweise
und nachhaltiger Qualität.
- Die Gebäude werden in nachhaltigen System-Thermowänden errichtet, einer innovativen Form des massiven Bauens, die höchste Qualitätsstandards erfüllt.
- Der Dachstuhl aus heimischem Nadelholz, das mit Naturstein belegte Treppenhaus und der Anschluss an das Fernwärmenetz garantieren Energieeffizienz und Umweltbewusstsein.
- Großzügige Fenster mit elektrischen Raffstores, edle Eichenparkettböden und elegante
Bäder mit Marken-Sanitärkeramik und Designarmaturen sorgen für stilvollen Wohnkomfort. - Die Zimmertüren werden größtenteils als platzsparende Schiebetüren ausgeführt.
Diese Lösung ermöglicht fließende Raumübergänge und schafft ein offenes Wohngefühl. - Stilvolle, individuell geplante Schreinereinbauküchen – harmonisch auf Ihr Zuhause
abgestimmt – zu exklusiven Projektkonditionen. - Video-Türsprechanlagen und durchdachte Details wie praktische Gartenschränke in
den Erdgeschosswohnungen machen das Zuhause zu einem Ort, der Alltag, Ästhetik
und Wohlbefinden harmonisch vereint.


Lage

Nachhaltig leben, modern wohnen – im Herzen von Hohenbrunn-Riemerling Ihr neues Zuhause am grünen Stadtrand von München
Die Gemeinde Hohenbrunn mit dem Ortsteil Riemerling liegt nur 15 Kilometer südöstlich der Münchner Innenstadt und ist über die S-Bahn sowie die nahegelegenen Autobahnen optimal angebunden. Das Münchner Zentrum – Marienplatz und Hauptbahnhof – ist mit dem Auto in rund 30 Minuten erreichbar.
Hohenbrunn vereint ländliche Ruhe mit urbanem Komfort und Innovationsgeist. Während Hohenbrunn von Feldern und Wiesen umgeben idyllisches Wohnen bietet, überzeugt Riemerling durch seine direkte Anbindung an Ottobrunn und das Münchner Stadtgebiet – ideal für Familien, Pendler und Naturliebhaber.
Einkaufsmöglichkeiten, Ärzte, Schulen und Kinderbetreuungseinrichtungen befinden sich direkt vor Ort. Die umliegenden Naherholungsgebiete laden zu vielfältigen Freizeitaktivitäten ein.
Die schönsten bayerischen Seen – etwa Chiemsee und Tegernsee – sowie die imposanten Alpen mit den berühmten Orten Garmisch-Partenkirchen und der Zugspitze, dem höchsten Berg Deutschlands, sowie Berchtesgaden am Königssee sind in nur etwa 1½ Stunden mit dem Auto erreichbar.
So entsteht eine einzigartige Kombination aus urbanem Lebensstil, hohem Alltagskomfort und naturnaher Erholung – mitten im grünen Südosten Münchens.

